深圳欧赛展厅

Shenzhen Exhibition Hall of OZOSL
2021年,全球疫情催生了对健康的全新追求,OZOSL 应时而生,围绕其品牌及产品,我们展开了OZOSL 展厅的设计。设计旨在深化人们对健康生活方式的理解和追求,通过空间与产品的无缝融合,引领消费者进入更加健康、纯净的生活体验。

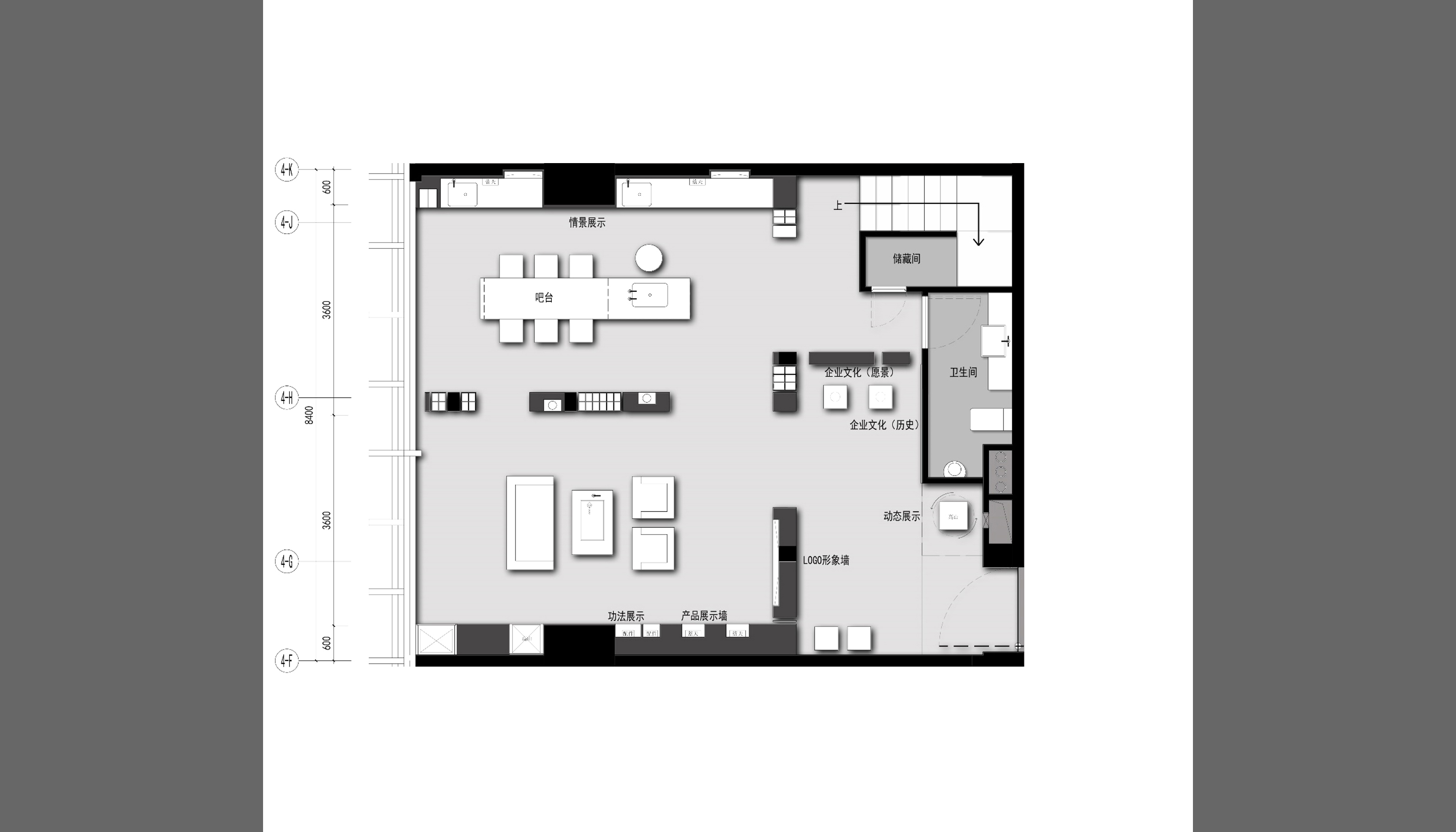
设计核心聚焦于空间感知关系的重构,致力于营造与产品功能相契合的场景体验,将净水自然地融入日常生活中,展示器其在实际使用状态下的情景与美感。通过提出的策划生活场景,让访客能够观察净水器在提升生活质量方面的真实价值。

空间的分割与重组策略,旨在通过室外至室内的流畅过渡,巧妙地解决原有建筑布局的间隙、楼层空间的功能与形态。这种创新性的设计手法,不仅优化了展厅的整体布局,也实现了功能区域的有机整合,使得每个处空间都成为产品展示的一部分。

紧扣“空间—产品—人”三者之间的互动关系,本设计通过精细的空间布局与人性化的设计思考,强化了消费者与产品之间的互动体验,增强了展品的吸引力和这不仅让消费者对净水器的功能特性有了深刻的认识,也极大地提升了人们对健康生活的向往和追求。

通过这一系列的设计思路和策略实施,展厅不仅仅是产品的展示空间,更成为了一种生活态度的传播者,引领人们走向更健康的未来生活。

Copyright 2021-2030 hovenid.com 版权所有 ICP证:粤ICP备2021103370号